residential interiors

interior design

bim services

construction

LOCATION

Tehran, Iran

Client

Private

Area

300 m²

Year

2022 - 2023

Status

Completed

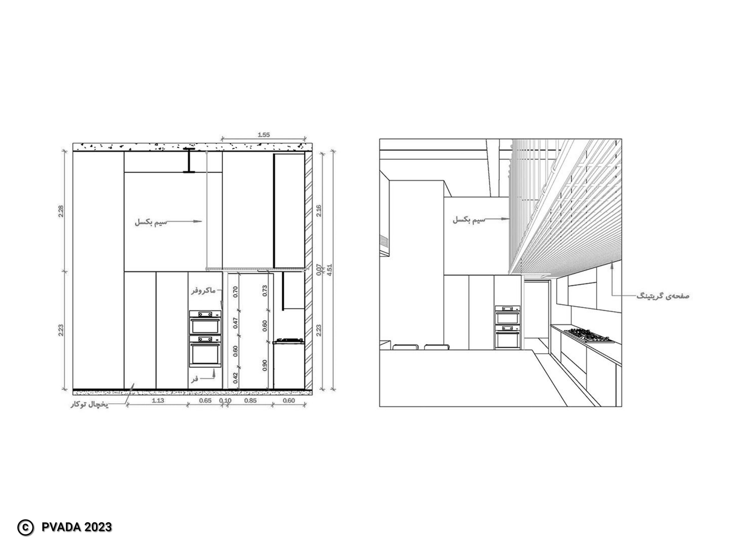
Project Overview

The renovation and interior design of this project required careful planning and attention to detail. The goal was to create a beautiful, functional space that maximized the potential of the apartment’s layout and enhanced the resident’s quality of life.
The renovation process involved updating the unit’s finishes, such as painting walls, refinishing floors, and replacing countertops and cabinetry. The design team worked closely with the client to determine their desired style and aesthetic preferences, as well as their functional needs and budget. we also took inspiration from the building’s architecture and surrounding neighborhood to create a cohesive design scheme.

In terms of interior design, the team considered factors such as lighting, furniture layout, and storage solutions to create a space that would feel open and inviting. We incorporated elements such as built-in shelving, hidden storage compartments, and multi-functional furniture pieces to maximize the apartment’s square footage. Color, texture, and pattern also played a role in creating a cohesive design scheme that would reflect the resident’s personality and lifestyle.
Overall, this project was a collaborative process that required careful planning, attention to detail, and a focus on creating a space that would be both beautiful and functional. The result was a space that the client would be proud to call home and that would enhance their quality of life.

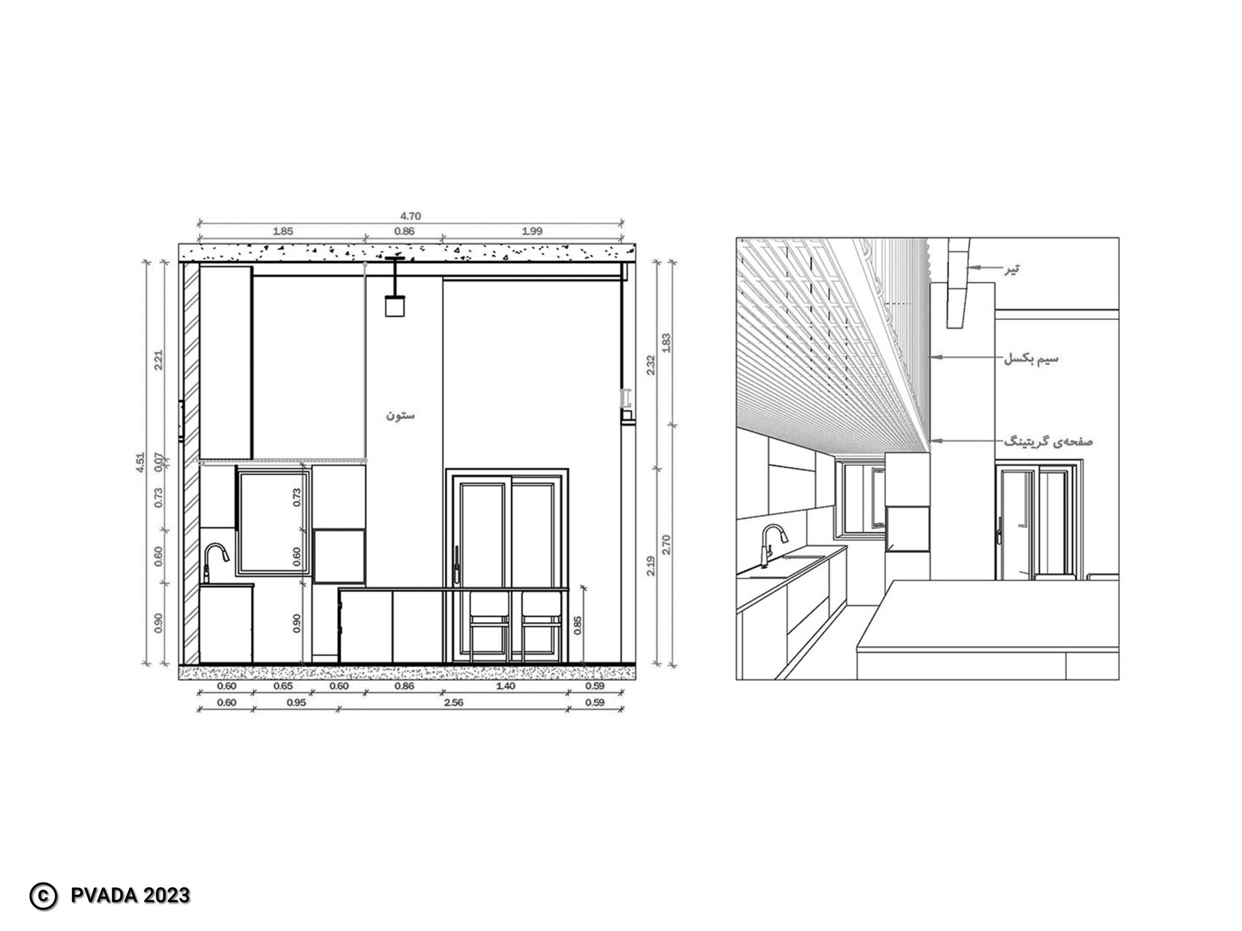
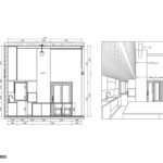
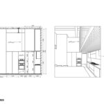
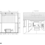
Project Gallery

share this project

We are ready to Consultto Design to BIM to Construct to Brand your Dream

Through a unique combination of engineering, construction and design disciplines and expertise.

Contact Info

Tel: +98 21 2691 9361,+98 21 2691 9439
Email: info@pvada.co

Address

No. 7, N Qalandari St, Qeytarieh,
Tehran, 1931743115, IRAN.

Explore
Drag