Afrooz Residence

residential interior

interior design

landscape design

LOCATION

Semnan, Iran

Client

Private

Area

380 m²

Year

2021

Status

Completed

Project Overview

For this project, we were tasked with the interior design of a two-story unit apartment and its terrace located in Semnan, Iran. The goal was to design a comfortable and functional space that would reflect the client’s style while also taking into consideration the unique characteristics of the location and the local culture.
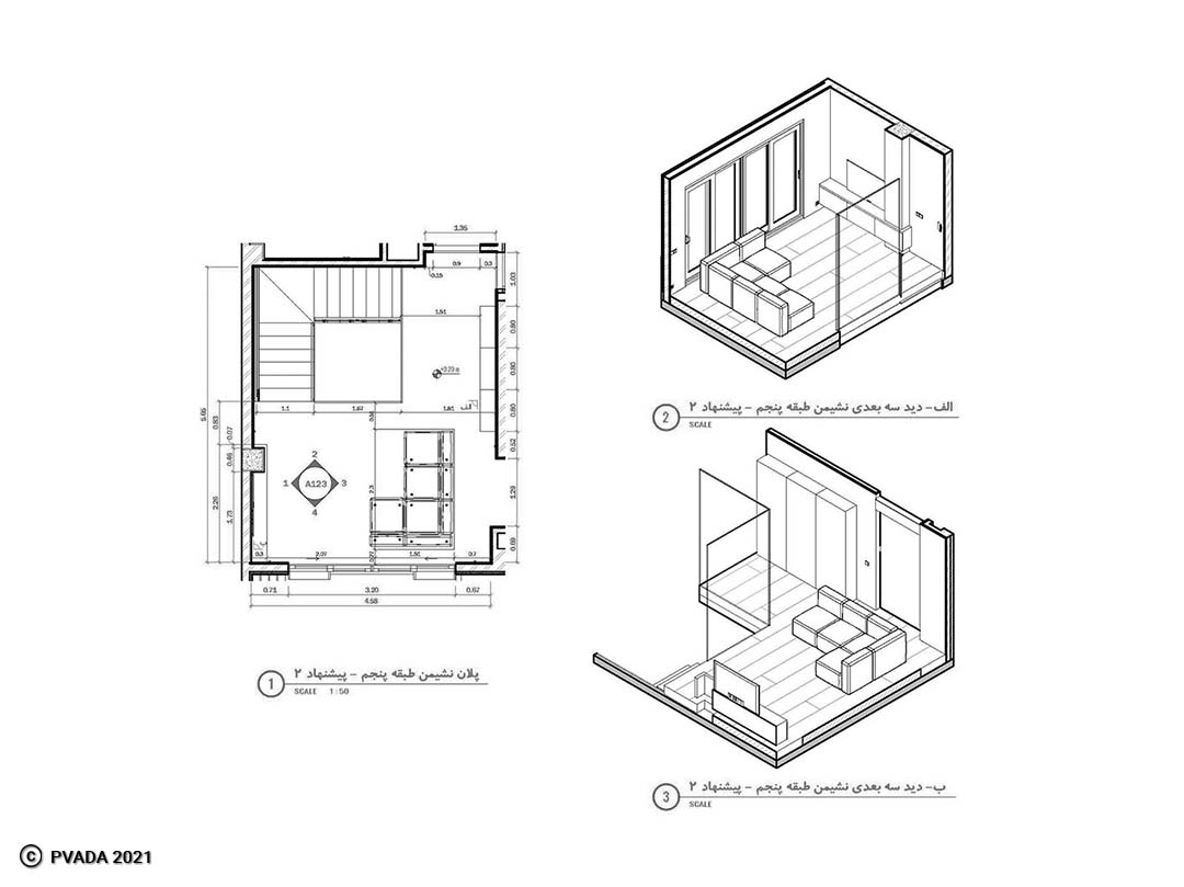
Starting with the first floor, consisting of an open-plan living room, dining area, and kitchen. The space was designed with a modern and minimalist aesthetic, using a neutral color palette with pops of warm, earthy tones to create a cozy atmosphere. To maximize space, the kitchen was designed with custom-built cabinetry and shelving, providing ample storage while also maintaining a sleek and streamlined appearance.
Moving up to the second floor, the bedrooms and bathrooms were located. The master bedroom featured a luxurious en-suite bathroom with a standalone bathtub and a large walk-in shower. The other bedrooms were also designed to provide maximum comfort and functionality, with ample storage space and carefully selected furnishings to create a cohesive and stylish look throughout the apartment.

Finally, the terrace was designed as an extension of the apartment’s living space, with a comfortable seating area, a dining table, cabinets, and a barbecue grill. The terrace was decorated with lush greenery and potted plants to create a calming and serene atmosphere, while also providing privacy from neighboring buildings.
Throughout the project, we had to take into consideration the local culture and design traditions, incorporating elements such as Iranian rugs, textiles, and artwork into the overall design scheme. With careful attention to detail and a focus on creating a harmonious and functional living space, we aimed to create an interior design that our clients would love and enjoy for years to come.

Project Gallery

After
Before

share this project

We are ready to Consultto Design to BIM to Construct to Brand your Dream

Through a unique combination of engineering, construction and design disciplines and expertise.

Contact Info

Tel: +98 21 2691 9361,+98 21 2691 9439
Email: info@pvada.co

Address

No. 7, N Qalandari St, Qeytarieh,
Tehran, 1931743115, IRAN.

Explore
Drag